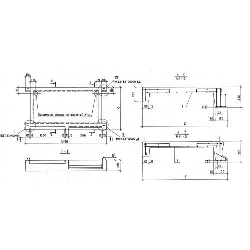
2ЛП 22.16 лестничные площадки ребристые

Чертеж изделия:
Характеристики изделия:
ПараметрЗначение
длина2480 мм
ширина1600 мм
высота320 мм
масса1200 кг
нормативный документГОСТ 9818-85

2ЛП 22.16  Лестничные площадки ребристые ГОСТ 9818-85.