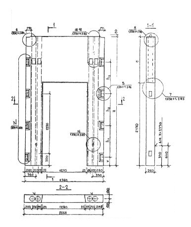
ВДП 26-36

Чертеж изделия:
Характеристики изделия:
ПараметрЗначение
длина2560 мм
ширина260 мм
высота3570 мм
масса3337 кг
нормативный документСерия 1.034.1-1

ВДП 26-36  Вентиляционные блоки-диафрагмы жесткости с проемом (Серия 1.034.1-1).