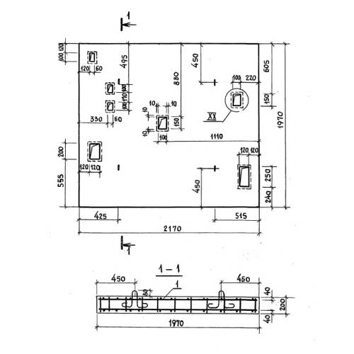
ПЛ 50-22
Характеристики изделия:
| Параметр | Значение |
|---|---|
| длина | 2170 мм |
| ширина | 1970 мм |
| высота | 200 мм |
| вес | 2100 кг |
| серия | 1.089.1-2 |
Цена:
Рассчитать стоимостьПЛ 50-22 Плиты перекрытия над шахтой пассажирского лифта по серии 1.089.1-2.
| Параметр | Значение |
|---|---|
| длина | 2170 мм |
| ширина | 1970 мм |
| высота | 200 мм |
| вес | 2100 кг |
| серия | 1.089.1-2 |
ПЛ 50-22 Плиты перекрытия над шахтой пассажирского лифта по серии 1.089.1-2.
