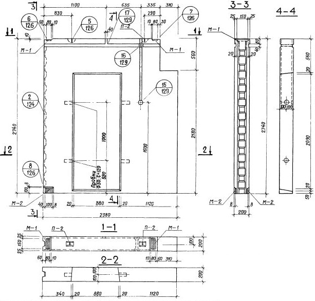
СБВ-24.2.28т-6

Чертеж изделия:
Характеристики изделия:
ПараметрЗначение
Длина2380 мм
Ширина200 мм
Высота2740 мм
Масса2225 кг
Нормативный документСерия 1.134-1

Блоки внутренних  стен  по Серии 1.134-1.

СБВ-24.2.28т-6   Стеновой блок внутренний.