ВБН 12.18.6

Чертеж изделия:
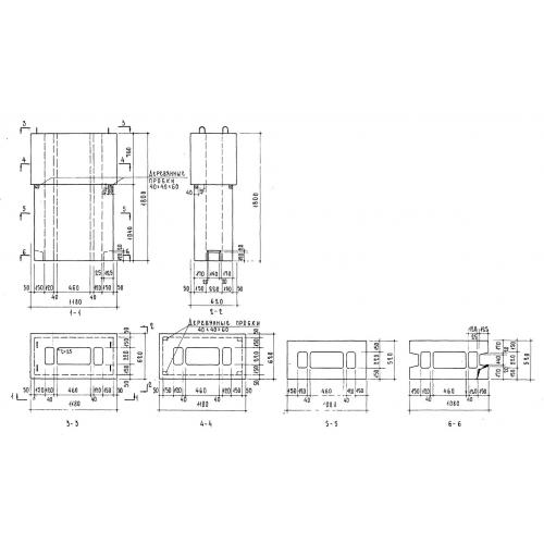
Характеристики изделия:
ПараметрЗначение
длина1180 мм
ширина620 мм
высота1800 мм
вес1040 кг
серия1.134-3

ВБН 12.18.6 Наружные вентиляционные блоки по серии 1.134-3.