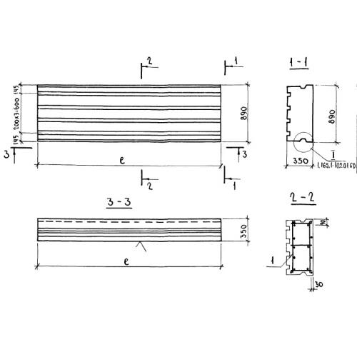
ПВ 63.9.35

Чертеж изделия:
Характеристики изделия:
ПараметрЗначение
длина6270 мм
ширина890 мм
высота350 мм
вес1370 кг
серия1.165.1-10

ПВ 63.9.35 Вентилируемые панели покрытия по серии 1.165.1-10.