ШЛВ 7-40

Чертеж изделия:
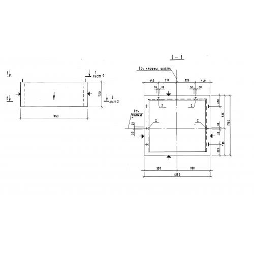
Характеристики изделия:
ПараметрЗначение
длина1780 мм
ширина1980 мм
высота1430 кг
вес1430 кг
серия1.189.1-8

ШЛВ 7-40 Блоки лифтовой шахты верхние по серии 1.189.1-8.