К 2

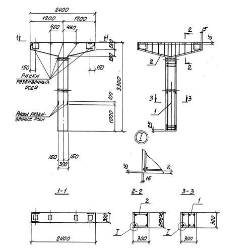
Чертеж изделия:
Характеристики изделия:
ПараметрЗначение
длина3300 мм
ширина2400 мм
высота300 мм
вес1250 кг
серия3.016.1-17.93

К 2 Колонны по серии 3.016.1-17.93.