П 35.20

Чертеж изделия:
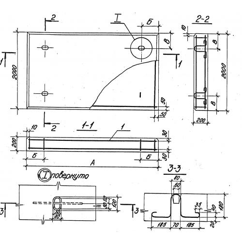
Характеристики изделия:
ПараметрЗначение
длина3500 мм
ширина2000 мм
высота200 мм
масса3500 кг
нормативный документСерия 3.504.1-20

П 35.20 Плиты покрытия сборные по Серии 3.504.1-20.