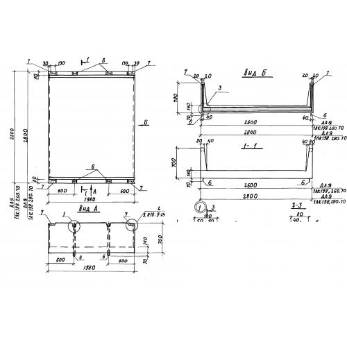
ЛК 198.280.70

Чертеж изделия:
Характеристики изделия:
ПараметрЗначение
длина1980 мм
ширина2800 мм
высота700 мм
вес2500 кг
серия3.818.9-2

ЛК 198.280.70 Лотки для каналов навозоудаления по серии 3.818.9-2.