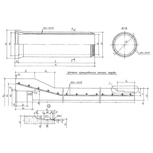
ТНН 60.50
Характеристики изделия:
| Параметр | Значение |
|---|---|
| длина | 5145 мм |
| ширина | 913 мм |
| высота | 913 мм |
| вес | 2120 кг |
| серия | 3.901.1-15 |
Цена:
Рассчитать стоимостьТНН 60.50 Трубы низконапорные центобежнопрокатные по серии 3.901.1-15.
| Параметр | Значение |
|---|---|
| длина | 5145 мм |
| ширина | 913 мм |
| высота | 913 мм |
| вес | 2120 кг |
| серия | 3.901.1-15 |
ТНН 60.50 Трубы низконапорные центобежнопрокатные по серии 3.901.1-15.
