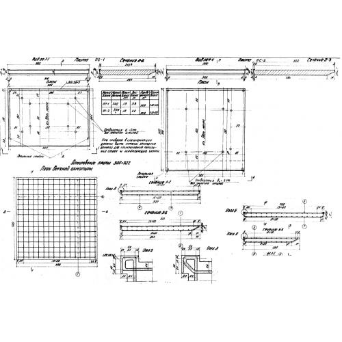
ПС 2 плиты стеновые

Чертеж изделия:
Характеристики изделия:
ПараметрЗначение
длина2980 мм
ширина1170 мм
высота100 мм
масса880 кг
нормативный документСерия ИС 01-04

ПС 2 Плиты стеновые по Серии ИС 01-04.