ПЭ 27.12

Чертеж изделия:
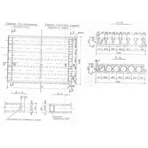
Характеристики изделия:
ПараметрЗначение
длина2680 мм
ширина1196 мм
высота220 мм
вес920 кг
шифрСК 1223

ПЭ 27.12 Плиты многопустотные безопалубочного формования по Шифру СК 1223.